Ryan Companies: Southwest Crossing

Latest Podcast
N Estrella Rd
Planned
Future facility in planning stage
Operated by:

Ryan Companies: Southwest Crossing

Lot Size: 122 acres

Sites on this Campus:

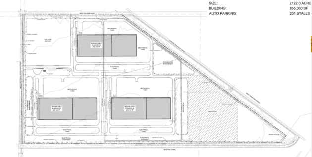
Ryan Companies plans to invest over $470 million to develop the Southwest Crossing Data Center, a 1.25 million square foot (116,130 square meter) campus. The real estate firm is working to rezone a planned warehouse site from General Industrial to General Industrial with a Planned Area Development Overlay to accommodate this data center project. On January 15, 2025, the Eloy Planning and Zoning Commission recommended approval for this rezoning request.

The development will include up to three buildings, each measuring 285,120 square feet (26,490 square meters), complemented by on-site substations.

Map and Nearby Locations:

N Estrella Rd
Ryan Companies Sites
Nearby Facilities

Sites within 15 miles of Ryan Companies: Southwest Crossing

Distance Site About
0.13 miles Ryan Companies: Southwest Expansion
9.72 miles Arizona Land: Casa Grande
Arizona Land Consulting, the Valley’s leading, female-owned real estate consulting firm, announced today its purchase of 600 acres in Pinal County.

Ryan Companies: Southwest Crossing Data Center Photos (See all)

Sitemap of Ryan Companies' Southwest Crossing Data Center in Eloy, Arizona.
Source: Ryan Companies

Operating Company

Operated by:

Ryan Companies US, Inc. is a national commercial real estate services firm that provides comprehensive solutions for development, architecture and engineering, construction, real estate management, and capital markets. They focus on creating value beyond financial metrics, prioritizing the impact their buildings have on the people who use them and the surrounding communities. This is achieved by understanding their clients' visions and fostering collaborative relationships. Their work spans various sectors, including industrial, retail, office, medical, senior living, and hospitality, with a commitment to delivering projects that are not only functional but also contribute positively to the lives of those they serve.

4
Facilities
0
Markets

News (See all)

Read More News

Podcasts (See all)

See More Podcasts

Documents (See all)

Ready to Level up Your
Data Center Strategy?