Ryan Companies

Ryan Companies US, Inc. is a national commercial real estate services firm that provides comprehensive solutions for development, architecture and engineering, construction, real estate management, and capital markets. They focus on creating value beyond financial metrics, prioritizing the impact their buildings have on the people who use them and the surrounding communities. This is achieved by understanding their clients' visions and fostering collaborative relationships. Their work spans various sectors, including industrial, retail, office, medical, senior living, and hospitality, with a commitment to delivering projects that are not only functional but also contribute positively to the lives of those they serve.

Ryan Companies Data Center Map

Ryan Companies Locations

The 780-acre development, dubbed the Florence Tech Park, has been presented with varying plans. Initial conceptual documents show five data centers, two office buildings, and one general industrial building.

Project Skyway is a proposal by developer Ryan Companies for a massive, 482-acre development in Pine Island, MN, which includes at least 100 acres of hyperscale data centers.

Ryan Companies Data Center Photos (See all)

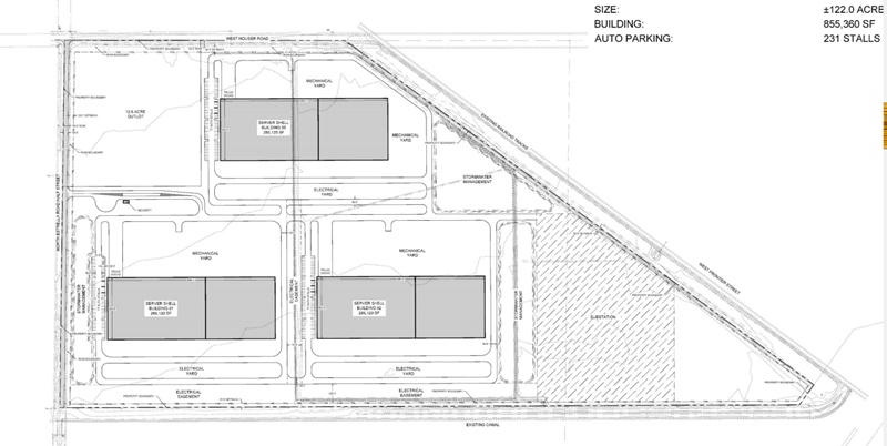
Sitemap of Ryan Companies' Southwest Crossing Data Center in Eloy, Arizona.
Source: Ryan Companies
Conceptual site plan for Florence Tech Park
Source: CVL Consultants
Proposed site for Project Skyway in Pine Island, Minnesota
Source: Ryan Companies

Related News (See all)

Ready to Level up Your
Data Center Strategy?